
Nu bestäms vilka som får bygga på Lummerhöjden
På tisdagen togs ett högtidligt spadtag för att markera att bostadsbyggandet på Lummerhöjden i Leksand går in i en ny fas.
— Vi har förvisso grävt och förberett marken i några månader, men nu börjar vi sälja fastigheterna, berättar kommunalrådet Sebastian Larsson (M).
Privata kunder får vänta ett tag till, men idag öppnar möjligheten för stora byggföretag att lämna in sina offerter till markanvisningen. Det är sju fastigheter grupperade i tre enheter som ska fördelas ut, men det är inte säkert att byggrätten går till de högstbjudande.
— De får konkurrera med varandra, vi gör urvalet utifrån kriterierna hållbarhet, genomförbarhet, gestaltning och pris, förklarar Johanna Cornwell, avdelningschef på kommunens fastighets- och exploateringsavdelning.
De som söker ska lämna in referensprojekt och det finns ett golvpris på 850 kronor per kvadratmeter exklusive anslutningsavgifter för att motverka skambud. Däremot skriver kommunen på markanvisningsportalen att buden gärna får ligga högre än golvpriset, och att det kommer premieras i utvärderingens poängsystem.
— Vi har exploatörer som redan har hört av sig till kommunen och aviserat intresse. Sedan vet vi ju inte säkert om de kommer att lämna in underlag under markanvisningarna, säger Cornwell som hoppas på en mångfald av intressenter, bostadstyper och upplåtelseformer.
Ambitionen är att Lummerhöjden ska innehålla både bostadsrätter, hyresrätter och olika typer av villor, radhus och parhus.

Bara första delen av etapp 1
Om alla fastigheterna i det första januarisläppet säljs till golvpriset skulle de inbringa cirka 14 miljoner kronor. Men det här gäller bara en liten del av Lummerhöjden, uppskattningsvis inte ens en fjärdedel av den totala planerade ytan.
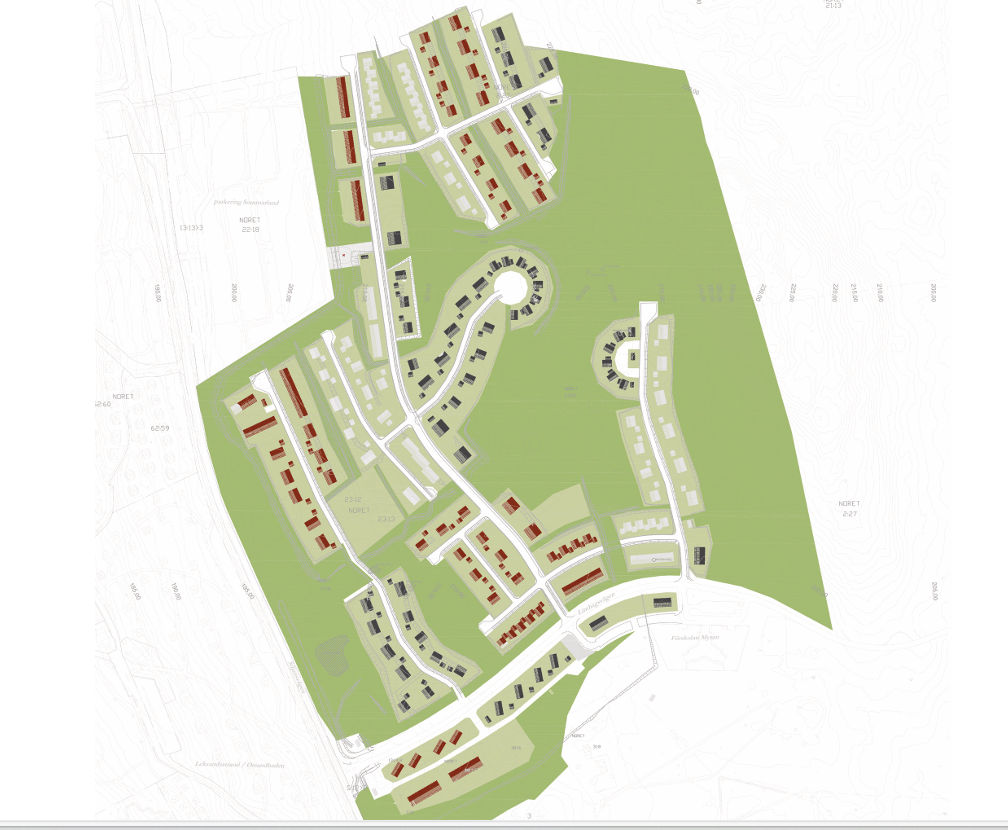
Först ut blir två områden söder om Limhagsvägen, alltså mellan Siljansvägen och förskolan Myran. Dessutom erbjuds ett område mitt på Lummerhöjden, direkt söder om telemasten bakom parkeringen vid Leksands sommarland (se karta längre ned).
Ännu fler markanvisningar till stora byggföretag ska släppas under våren och sommaren, syftet är att känna av intresset steg för steg så att marknaden inte blir övermättad.
Villatomter säljs i maj
Privata intressenter som vill bygga och flytta in på Lummerhöjden kan ringa in maj månad i kalendern. I maj släpps nämligen 20 småhustomter genom kommunens upphandlade mäklare Liselotte Mattsson på Länsförsäkringar Fastighetsförmedling.
— Vi har redan haft några som har ställt frågor om det, trots att vi inte har börjat marknadsföra Lummerhöjden än, bekräftar Liselotte Mattsson.

För några år sedan försökte kommunen införa ett kösystem, men som det verkar nu kommer alla att ha samma möjligheter att köpa sig en tomt.
De första villatomterna kommer också att ligga mitt på Lummerhöjden, sydväst och sydost om telemasten.
Johanna Cornwell på Leksands kommun tillägger att även stora byggföretag så småningom kommer att få möjligheten att vinna markanvisningar för att bygga villor.
Enhetlig färgskala
I underlaget för det nya bostadsområdet lämnas vissa detaljer fria åt byggherrarnas fantasi, medan andra delar styrs hårdare. Färgerna på byggnaderna är till exempel reglerade genom arkitekturprogrammet.
Vissa kvarter ska målas med röda färger, andra i grå eller svarta nyanser, och några i vita, träfärgade eller ljusgula toner.
— Tanken är att färgerna ska knyta ihop Lummerhöjden med hur resten av Leksand ser ut, säger Viktor Zakrisson (S), kommunstyrelsens vice ordförande i Leksand.
Sedan tidigare är det beslutat att gatorna får namn efter folkdräkternas olika delar.

Därför satsar kommunen på Lummerhöjden
Ansökningsfönstret är öppet i två månader, sedan ska exploateringarna ska sedan vara genomförda inom två års tid från att avtalen skrivs under. De ansvariga vågar därför hoppas på byggstart redan det här året.
— Vi är också glada att vi har kunnat bygga det här området tillsammans med lokala aktörer, säger kommunalrådet Sebastian Larsson (M), och syftar bland annat på DalaFrakt med bas på Limhagen.
DalaFrakt, Dala Energi och Dala Vatten och Avfall håller på att färdigställa anläggningen av vägar, el och avlopp. I slutet av sommaren ska infrastrukturen slutbesiktas. Därpå ska området utvecklas med lekplats och annat som behövs för att de nyinflyttade ska trivas.
Sammanlagt ska ovanstående försäljningar i etapp 1 rendera ungefär 150 av de 280 planerade bostäderna på Lummerhöjden.
— Vi har ju växt med närmare 1000 personer det senaste decenniet, och är det något vi behöver framöver så är det attraktiv byggbar mark, säger Sebastian Larsson (M) och fortsätter:
— Förhoppningen är att Leksand ska kunna växa med ytterligare 1000 personer de kommande åren. Hur pass sannolik den utvecklingen är låter jag vara osagt, men vi skapar i alla fall förutsättningar för det genom att göra plats åt uppemot 300 bostäder.