
Nu blir sportbutiken – kyrka och ungdomsgård
Pingstkyrkoförsamlingen i Leksand står inför spännande förändringar. Den gamla kyrkan är såld och nu väntar man på att bygglovshandlingarna ska godkännas för ombyggnationerna man vill göra i de nya lokalerna man köpt, gamla Allans Sport. Siljan News pratar med församlingens Anders Backhans om byggplanerna för den nya mötesplats på drygt 1 700 kvadratmeter mitt i centrala Leksand.
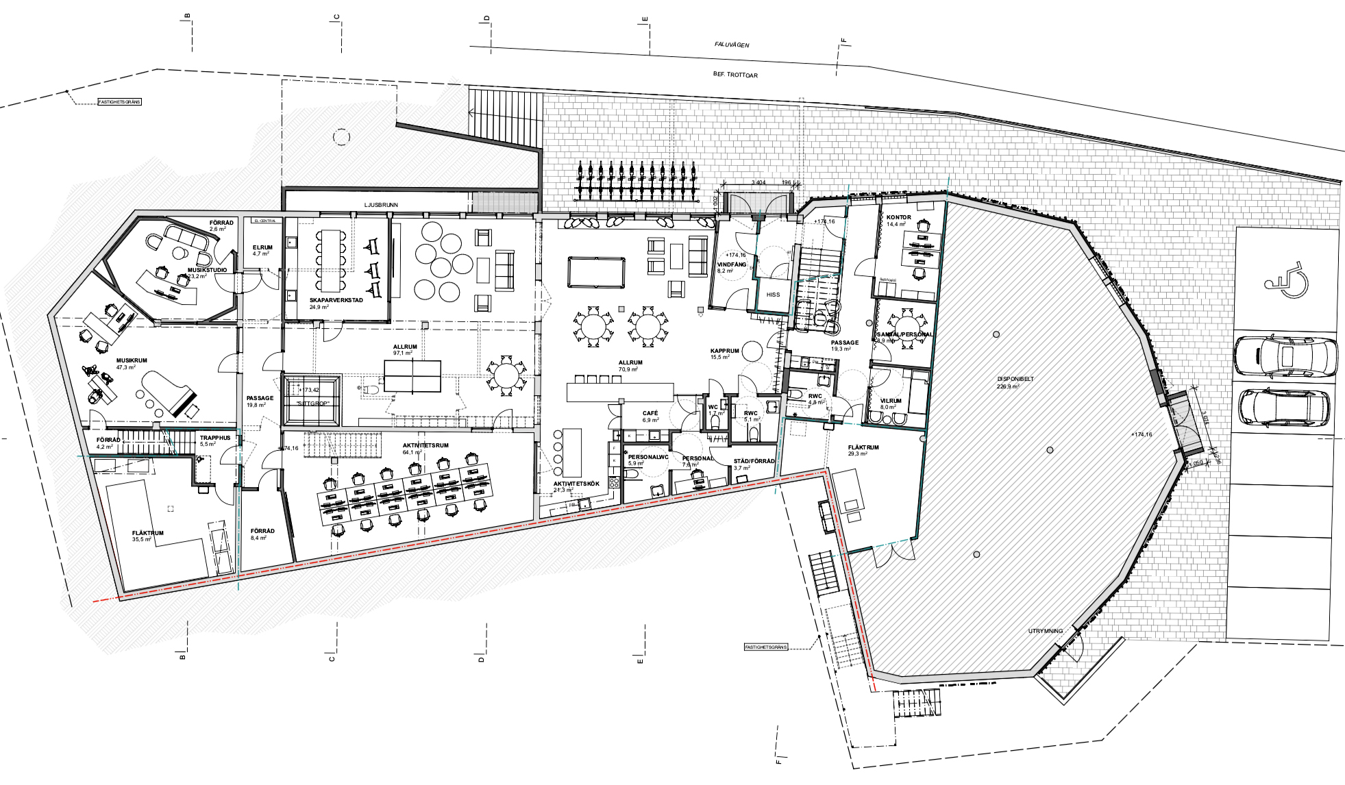
— Vi hoppas att ”Allans” ska bli en öppen och social mötesplats för alla i Leksand med bland annat: café, samlingssal, ungdomsgård och en ny musikstudio – allt under samma tak, berättar Anders Backhans representant för kyrkans fastighetsgrupp och tillägger:
— Vi vill verkligen att huset ska leva alla dagar i veckan, inte bara på söndagar!

För att tillgänglighetsanpassa den nya byggnaden tänker man bland annat bygga en hiss. På entréplanet planeras ett café med uteservering under sommarhalvåret, samt en stor samlingssal för cirka 300 personer som ska kunna användas för både församlingens verksamhet och öppna arrangemang. I källaren byggs en ungdomsgård som även ska kunna nyttjas av andra sociala verksamheter på dagtid.
— Vi ser ett ökat behov för möteslokaler, särskilt bland ungdomar. Bara på onsdagarna när vi har vår tweens-grupp för barn i årskurerna 4-6 i våra nuvarande lokaler så brukar det komma över femtio unga. Det visar hur viktigt det är att det finns en trygg plats att samlas på.
I anslutning till ungdomsgården byggs också en musikstudio – något som saknats i Leksand.
— Det finns många unga som vill spela in musik eller bara ha en plats att öva. Nu får de möjligheten vilket känns jättebra.
Församlingen består i dag av cirka 140 medlemmar, men tanken är att den nya lokalen ska vara öppen för hela samhället. Backhans betonar att huset inte bara ska fungera som kyrka, utan som en mötesplats där människor i alla åldrar kan träffas över en kopp kaffe, lyssna på musik eller delta i aktiviteter.

Byggnaden får också ett nytt yttre. Den gamla tegelfasaden byts mot panel i vitt och brunt för att skapa en modern, inbjudande känsla.
— Vi vill att det ska kännas som något nytt, en plats som människor vill komma till, som fyller en viktig funktion och något som kanske har saknats på orten tidigare, säger han.
När kommer ni börja bygga om?
— Så fort bygglovet går igenom så är vi beredda. Vi kommer färdigställa entréplanet först och sedan fokusera på källarplanet. Anledningen till den prioriteringen är att i mars måste vi lämna våra gamla kyrkolokaler så då måste vi ha något att flytta in till.